| Private Owner Linda NW A Ave Pendleton, OR 97801 |
Phone: | Click here |
| Website: | Click here | |
| Member Since: | May. 20th, 2013 | |
| Other Listings: |
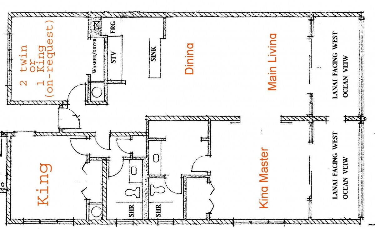
3 Bedrooms, 2 Bathrooms, Capacity: 8
Bedrooms: 3. Bathrooms: 2![]()
![]()
3 Bedrooms, 2 Bathrooms, Capacity: 8
Beds: 2 King 2 Twin -Twins can be made up as King
Minimum Stay: 7 unless calender opening is less
![]()
![]()
Beachfront, Water View
Nearby Attractions: - Golf - Wind Surfing - Swimming - Park - Dining Hiking - Snorkeling - Scuba Beach - Bicycling - Shopping - Surf
Guest: Barbara Campbell (Spruce Grove, AB, Canada) Date of Stay: 02/01/13 Review Submitted: 02/12/13 We had an absolutely wonderful time at this three bedroom condo at the Kamaole Beach Royale. It was such a nice experience, being close to the beach and having the barbeque area on the 7th floor. We had 14 members of our family at one point and it was a very nice location to have a family get together. The suite was very spacious with comfortable beds and insuite laundry. We would certainly stay there again. Recommended for:People with disabilities, families with teenagers, girls getaway, adventure seekers, sightseeing, families with young children, age 55+.
We offer a diverse selection of private vacation home rentals, condos, cabins and beach lodging in Hawaii including Kihei vacation rentals in Kihei, Hawaii.
http://www.vrbo.com/icalendar/d7f2f5d9afeb4a999e9181cc145b5f52.ics